Project Line205P
Passenger ship

When updating the passenger fleet, it is necessary to create modern ships with a high level of automation, ideologically based on the "cost - efficiency" criterion.
Compared to traditional passenger ships of the OM type, the Line205P is half the length and three times the displacement, which significantly reduces construction and operating costs. At the same time, the vessel is capable of carrying up to one hundred passengers, which leads to the optimization of transportation costs per person.
Simplicity and manufacturability of shipbuilding steel construction allows building such vessels at any shipbuilding enterprise.
Exteriors
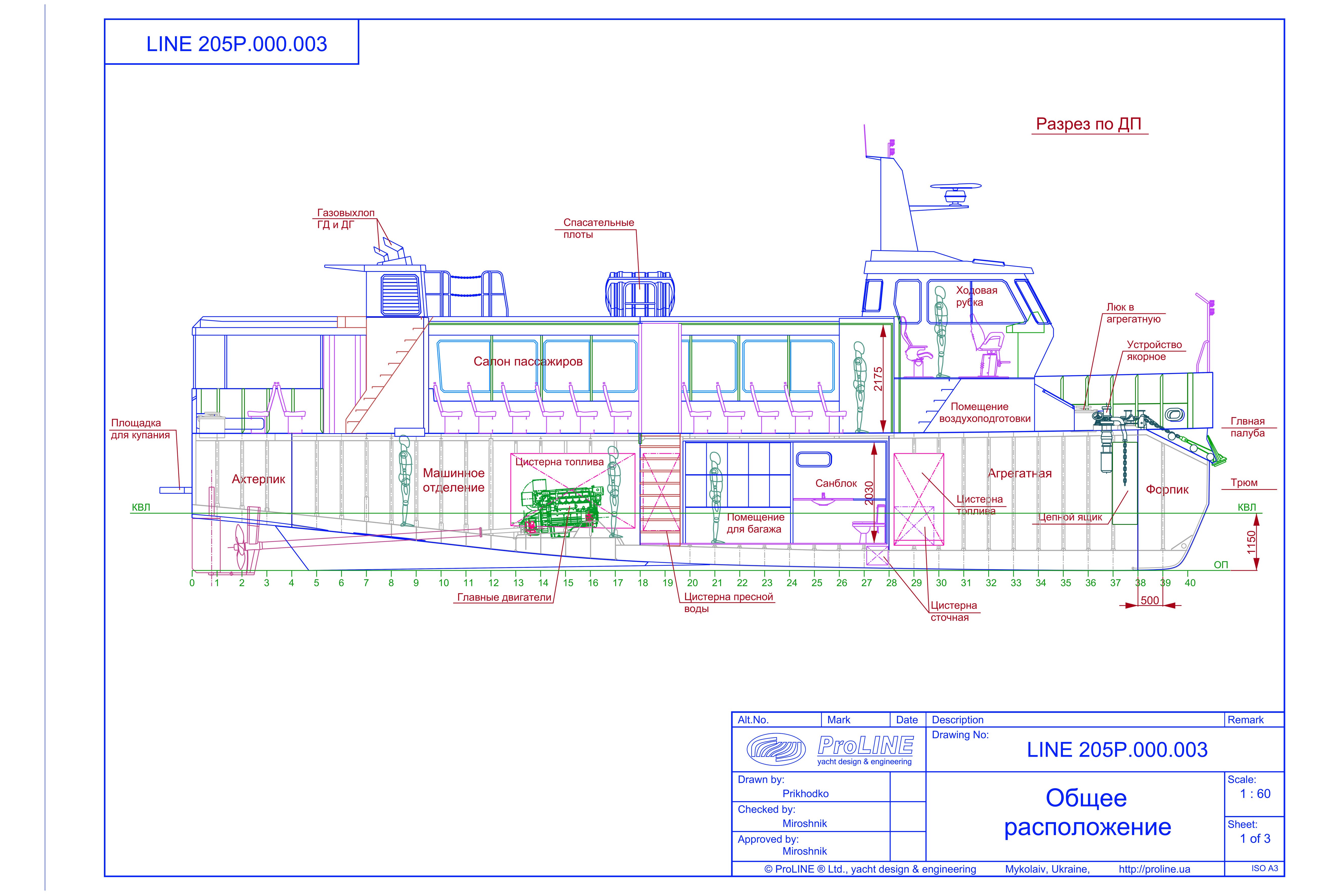
Description of the ship. The ship is designed to carry passengers on inland waterways and in the coastal zone of the seas.
Line205R is a steel single-hull vessel with a superstructure for the entire width of the hull. The wheelhouse has been moved forward to provide a better view. The passenger cabin is located on the upper (main) deck. Luggage room and two bathrooms - on the bottom. The engine room is located in the aft part of the hull and is separated by watertight bulkheads. Required tanks fuel, fresh water and sewage are mounted in the middle part of the hull and are inset. The main engines are two reversible diesel gear units. There is a separate diesel generator.
Anchor and mooring devices are located on the bow and stern parts of the deck.
The ship is equipped with the necessary means of communication and navigation, as well as life-saving equipment according to the number of passengers and crew on board.
The ship can be equipped with a supply ventilation and air conditioning system.
Embarkation and disembarkation of passengers is carried out on folding ladders in the stern of the vessel.
Sleeping places for crew members are not provided.
At the request of the Customer, the layout of the vessel can be changed for various tasks, namely: short sea (river) trips, weekend cruises, solemn events, etc.
Main characteristics
| Main dimensions: | |
|---|---|
| Length maximum, m | 21.2 |
| Length along the main body, m | 20.5 |
| Maximum width, m | 5.8 |
| Displacement, tonnes | 51 |
| Draft, m | 1.17 |
| Main motor | |
| VOLVO PENTA D7A TA, kW | 2×150 |
| Diesel generator, kW | up to 50 |
| Travel speed, | |
| Maximum, knots | 11 |
| Operational, knots | 10 |
| Passengers, persons | 96 + 2 with disabilities |
| Crew, people | 3 |
| Fuel, m³ | 6.3 |
| Fresh water, m³ | 1.6 |
Hull and superstructure material - shipbuilding steel.







